Laboratorio in affitto

San Giuliano Terme, Via Giosuè Carducci - La Fontina
€ 1.500 / mese
1 locale 1 locale
250 Mq 250 Mq
1 bagno 1 bagno

Laboratorio in affitto

San Giuliano Terme, Via Giosuè Carducci - La Fontina

Descrizione annuncio

– LA FONTINA

C/3 – LABORATORIO

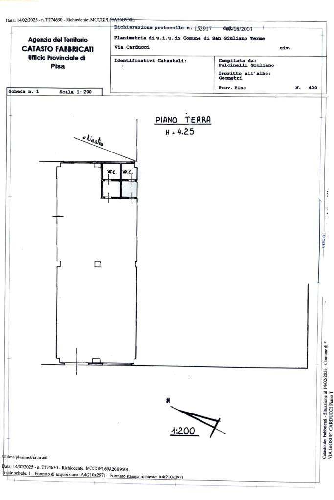
Proponiamo in affitto un laboratorio di 250 mq situato al piano terra.

DESCRIZIONE E PARTICOLARITA’

Il laboratorio proposto in affitto gode di una superfice calpestabile di 250 mq ed è situato al piano terra.

Attraverso l’ingresso di accede all’ampio locale open-space di 245 mq, dotato di antibagno e bagno per disabili.

L’immobile è alto 4.25 e dispone di una rampa per l’ingresso delle auto.

Completano la soluzione i due posti auto esclusivi ed il comodo parcheggio gratuito posto di fronte al capannone.

UBICAZIONE E CONTESTO

Il laboratorio proposto in affitto si trova nella zona commerciale/industriale della Fontina, vicino al centro di Pisa ed alle principali vie di comunicazione.

Fissa un appuntamento per vedere questo immobile e chiama lo 050.3144967 oppure manda un'email a pice4

Mostra tutto

Nelle vicinanze

Trasporto pubblico Trasporto pubblico
stazione di Pisa San Rossore
stazione di Pisa San Rossore
2,6 Km
stazione di Pisa Centrale
stazione di Pisa Centrale
2,7 Km
Carducci 1
Carducci 1
100 m
Gandhi
Gandhi
290 m
Stazione Centrale
Stazione Centrale
2,8 Km
Ricariche auto elettriche Ricariche auto elettriche
Pisa Park Battelli | EnelX
720 m
Park Brennero | EnelX
790 m
Questura Di Pisa | EnelX
1,4 Km
Pisa Coop Valgimigli | EnelX
1,4 Km
Santa Caterina d'Alessandria | EnelX
1,5 Km
Scuole Scuole
PERCRO, Scuola superiore Sant'Anna
310 m
Scuola elementare “Morroni”
900 m
Primaria Vasco Morroni
1,0 Km
Aula magna / centro congressi
1,1 Km
Ufficio immatricolazioni Matricolandosi
1,1 Km
Farmacia Farmacia
Farmacia comunale La Fontina
230 m
Farmacia Comunale n°3
1,0 Km
Farmacia
1,3 Km
Farmacia Gazzini
1,4 Km
BioFarma - Parafarmacia & Erboristeria
1,6 Km
Ospedali Ospedali
USL 5
1,2 Km
Pubblica Assistenza S.R. Pisa
2,1 Km
Polo Ospedaliero "Santa Chiara"
2,3 Km
Supermercati Supermercati
Carrefour
180 m
Lidl
880 m
Coop
1,2 Km
Arcobalò
1,2 Km
Conad Margherita
1,4 Km
Negozi Negozi
Moto abbigliamento
90 m
Negozi
760 m
Panetteria I Cavalieri
900 m
Panificio
1,1 Km
TriBeCa
1,4 Km
Bar Bar
BARart
110 m
Reverse
190 m
Break Lunch SRL
210 m
Bar Rossi
220 m
Deposito Pontecorvo
220 m
Ristoranti Ristoranti
L'arte del bere e...
90 m
Bar Pizzeria Ristorante da Antonella e Umberto
100 m
Pizza a GoGo
230 m
O'Scugnizzo
270 m
Ristorante 318
310 m
Mostra tutto

Caratteristiche

Rif.:
61115147
Piano:
Terra di 2
Totale piani:
2
Posti auto:
2
Condizionamento:
Assente
Ascensore:
No
Mostra tutto
Prezzo Prezzo
€ 1.500 / mese

Classe Energetica

Questo immobile è esente da classe energetica
Anno di costruzione:
1980
Riscaldamento:
Assente

Ti interessa visionare l'immobile?

Fissa un appuntamento  Fissa un appuntamento

Richiedi informazioni

Clicca su Leggi per aprire l'informativa
* Questi campi sono obbligatori
Affiliato
Impresa Pisa Srl
Via Gioacchino Volpe, 108 56122 Pisa (PI)
Via Gioacchino Volpe, 108 56122 Pisa (PI)
Zona: Pisa-Cascina
Mostra su mappa
Orari: I nostri orari di apertura sono: Lunedì: 09:00 - 13:00 e 14:00 - 19:00 Martedì: 09:00 - 13:00 e 14:00 - 19:00 Mercoledì: 09:00 - 13:00 e 14:00 - 19:00 Giovedì: 09:00 - 13:00 e 14:00 - 19:00 Venerdì: 09:00 - 13:00 e 14:00 - 19:00 Sabato: 09:00 - 13:00 Domenica: Chiuso
Affiliato
Impresa Pisa Srl
Via Gioacchino Volpe, 108 56122 Pisa (PI)

2025 Tecnocasa Franchising S.p.A. - P. IVA 08365160152 - Via Monte Bianco 60/A 20089 Rozzano (MI). Ogni agenzia ha un proprio titolare ed è autonoma. Privacy policy | Policy utilizzo | Cookie policy