Complesso in vendita

San Giuliano Terme, Via Sp9 - Palanche
€ 1.850.000
3040 Mq 3040 Mq
3 bagni 3 bagni

Complesso in vendita

San Giuliano Terme, Via Sp9 - Palanche

Descrizione annuncio

SAN GIULIANO TERME – MADONNA DELL’ACQUA

D/8 – COMPLESSO COMMERCIALE A DESTINAZIONE SERVIZI

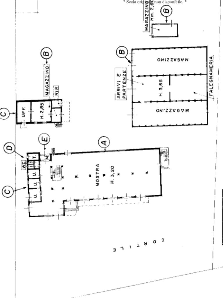
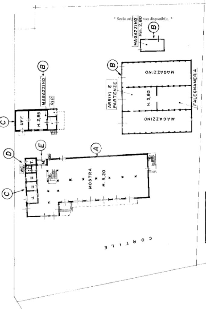
Proponiamo in vendita un complesso commerciale di 3040 mq libero su quattro lati, dotato di spazio esterno di oltre 10.000 mq.

DESCRIZIONE E PARTICOLARITA’

Il complesso commerciale proposto in vendita è composto da un corpo principale sviluppato su tre livelli, speculari tra di loro, per una superfice complessiva di 2153 mq.

Al piano terra, l’ingresso principale si apre su un corridoio che conduce, a sinistra, a un ampio locale di 260 mq dove sono presenti tre uffici e, a destra, a un ampio open-space di 518 mq attualmente suddiviso da parenti in cartongesso in piccole stanze, con possibilità di rimuoverle per creare un unico ambiente.

Attraverso le scale accediamo al secondo piano che è suddiviso in più stanze nella parte destra di 518 mq, anch’esse realizzate in cartongesso perfette per degli uffici, e a sinistra troviamo un ampio locale di 196 mq a sua volta suddiviso.

Sempre attraverso le scale arriviamo al terzo ed ultimo piano dove troviamo un unico ambiente di circa 700 mq.

All’esterno, sul retro del fabbricato, sono presenti tre magazzini rispettivamente di 37, 113 e 737 mq.

Completano la soluzione il montacarichi, i tre bagni, il piazzale esterno di 8656 mq e un terreno di circa 5000 mq sul retro del fabbricato.

UBICAZIONE E CONTESTO

Il complesso commerciale proposto è ubicato a San Giuliano Terme, su strada ad alto passaggio veicolare con alta visibilità che collega comodamente il comune di Pisa a quello di San Giuliano Terme e Lucca.

Fissa un appuntamento per vedere questo immobile e chiama lo 050.3144967 oppure manda un’e-mail a pice4

Mostra tutto

Nelle vicinanze

Trasporto pubblico Trasporto pubblico
Trasporto pubblico
20 m
palanche 4
palanche 4
160 m
Ricariche auto elettriche Ricariche auto elettriche
Pisa Park Pietrasantina | EnelX
2,4 Km
Eneldrive Stadio Arena Garibaldi
2,9 Km
Scuole Scuole
Scuola elementare "Filzi"
1,6 Km
Scuole
2,5 Km
Scuola Elementare "Carlo Collodi"
2,5 Km
Scuola Media Giuseppe Mazzini
2,6 Km
IPSIA "Fascetti"
2,7 Km
Farmacia Farmacia
Farmacia Madonna dell'Acqua
1,4 Km
Parafarmacia Conad
1,5 Km
Farmacia
2,4 Km
Farmacia Comunale N,2
2,4 Km
Farmacia Mugnaini - Metato
2,9 Km
Supermercati Supermercati
Conad Superstore
1,5 Km
Mondo Risparmio
1,6 Km
Conad City
2,4 Km
coop
2,4 Km
Penny
2,4 Km
Negozi Negozi
La spiga d'oro
2,2 Km
Negozi
2,4 Km
Carrefour Express
3,0 Km
TriBeCa
3,0 Km
L'Angolo del Pane
3,0 Km
Bar Bar
Bar
320 m
Circolo "I Passi"
1,8 Km
La Tana Del Ghiotto
2,2 Km
Bar Nedo
2,6 Km
Senduicce Cafe
2,9 Km
Ristoranti Ristoranti
Ristorante La Fattoria L’Olmetto
650 m
Al Vecchio Braciere
1,9 Km
Ristorante da Inaco
2,0 Km
Vecchio Forno
2,2 Km
Pizzeria Ponte d'Oro
2,3 Km
Mostra tutto

Caratteristiche

Rif.:
61141335
Piano:
Su più livelli di 2 con ascensore
Totale piani:
2
Condizionamento:
Assente
Ascensore:
Riscaldamento:
Assente
Mostra tutto
Prezzo Prezzo
€ 1.850.000
Rata mutuo Rata mutuo
€ 8.789 / mese
Proponi il tuo prezzoProponi il tuo prezzo

Altre caratteristiche

Classe Energetica

Questo immobile è esente da classe energetica
Anno di costruzione:
1967
Riscaldamento:
Assente

Ti interessa visionare l'immobile?

Fissa un appuntamento  Fissa un appuntamento

Richiedi informazioni

Clicca su Leggi per aprire l'informativa
* Questi campi sono obbligatori

Calcola il tuo mutuo

Semplice e senza impegno
Anticipo

( % )
Mutuo

( % )

pochi semplici passi

inserisci i tuoi dati
Questionario completato
Grazie per aver richiesto un appuntamento senza impegno con un nostro Consulente del Credito e Assicurativo.

Hai inserito correttamente tutti i dati necessari e a breve riceverai una e-mail con un link da convalidare per inviare i tuoi dati.
Affiliato
Impresa Pisa Srl
Via Scornigiana, 56 56121 Pisa (PI)

Il nostro staff


  • Adelin Bursuc
    Collaboratore

  • Greta Lami
    Collaboratrice

  • Davide Rullo
    Collaboratore

  • Carmen Scullari
    Coordinatrice

  • Luca Schifano
    Affiliato
Via Scornigiana, 56 56121 Pisa (PI)
Zona: Pisa-Cascina
Mostra su mappa
Orari: I nostri orari di apertura sono: Lunedì: 09:00 - 13:00 e 14:00 - 19:00 Martedì: 09:00 - 13:00 e 14:00 - 19:00 Mercoledì: 09:00 - 13:00 e 14:00 - 19:00 Giovedì: 09:00 - 13:00 e 14:00 - 19:00 Venerdì: 09:00 - 13:00 e 14:00 - 19:00 Sabato: 09:00 - 13:00 Domenica: Chiuso
Affiliato
Impresa Pisa Srl
Via Scornigiana, 56 56121 Pisa (PI)

2026 Tecnocasa Franchising S.p.A. - P. IVA 08365160152 - Via Monte Bianco 60/A 20089 Rozzano (MI). Ogni agenzia ha un proprio titolare ed è autonoma. Privacy policy | Policy utilizzo | Cookie policy