Capannone in vendita

San Giuliano Terme, Via Lenin - San Martino A Ulmiano
€ 700.000
13 locali 13 locali
800 Mq 800 Mq
6 bagni 6 bagni

Capannone in vendita

San Giuliano Terme, Via Lenin - San Martino A Ulmiano

Descrizione annuncio

SAN GIULIANO TERME – SAN MARTINO A ULMIANO

D/8 – CAPANNONE COMMERCIALE

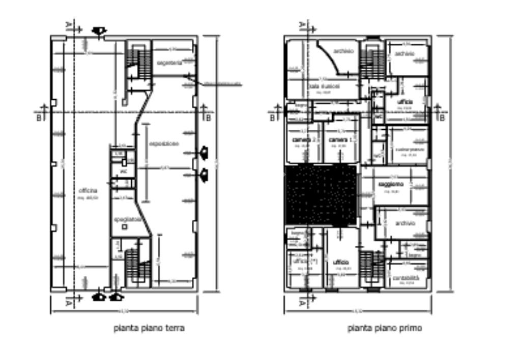
Proponiamo in vendita un capannone commerciale di circa 800 mq libero su quattro lati e sviluppato su due livelli.

DESCRIZIONE E PARTICOLARITA’

L’ingresso principale conduce nella zona dedicata all’esposizione di circa 130 mq dotata di tre vetrine e di una piccola area adibita ad uffici. Proseguendo si accede al magazzino di circa 183 mq, dotato di due portelloni industriali alti 3,4 m e larghi 4 m.

Possibilità di creare un unico ambiente.

Attraverso le scale si accede al primo piano, dove troviamo tre locali adibiti rispettivamente a sala riunione, archivio e ufficio.

Sempre al primo piano, con ingresso indipendente, è presente un'area composta da un locale ad uso archivio, uno ad uso contabilità e altri due locali ad uso ufficio. Proseguendo è presente un appartamento composto da due camere, una cucina e un soggiorno.

Completano la soluzione i sei servizi igienici con antibagno, una terrazza di 45 mq a servizio dell'appartamento e un piazzale di circa 900 mq.

Nel capannone sono stati effettuati alcuni interventi di ristrutturzione tra cui: impianto elettrico e coibentazione al tetto.

Ideale anche per investimento.

Il prezzo è da intendersi oltre IVA.

UBICAZIONE E CONTESTO

Il capannone proposto è ubicato a San Martino a Ulmiano nel comune di San Giuliano Terme, facilmente raggiungibile dalla Strada Statale 12 dell'Abetone e del Brennero e consente rapidi collegamenti con la città di Pisa.

Fissa un appuntamento per vedere questo immobile e chiama lo 050.3144967 oppure manda un’e-mail a pice4

Mostra tutto

Nelle vicinanze

Trasporto pubblico Trasporto pubblico
stazione di San Giuliano Terme
stazione di San Giuliano Terme
2,3 Km
Rigoli
Rigoli
2,9 Km
Trasporto pubblico
1,3 Km
Pappiana Bivio
Pappiana Bivio
1,4 Km
Scuole Scuole
Scuole
1,0 Km
Scuola elementare “U. Dini”
1,5 Km
Scuola di Pappiana
1,6 Km
Scuola Media Inferiore "Enrico Fermi"
1,6 Km
Scuola Elementare "Giuseppe Mazzini"
1,7 Km
Farmacia Farmacia
Farmacia Macchi
1,4 Km
Farmacia Botta
2,4 Km
Farmacia Dinucci
2,4 Km
Farmacia
3,0 Km
Ospedali Ospedali
Asl 5 Presidio Distrettuale Vecchiano
2,9 Km
Supermercati Supermercati
Penny
130 m
EuroSpin
1,3 Km
Conad
1,5 Km
Conad City
2,2 Km
Negozi Negozi
Abbigliamento Il Fiocco
1,6 Km
Negozi
1,6 Km
Panetteria Da Baffo
1,8 Km
Panetteria Le Terme
2,7 Km
Bar Bar
Bar
150 m
Circolo ARCI San Martino Ulmiano
950 m
Circolo Casa del Popolo
1,6 Km
Circolo ARCI 90 Pappiana
1,6 Km
Old West
1,8 Km
Ristoranti Ristoranti
Pizzeria Osteria La Vecchia Toscana
850 m
Pizzeria Il Forno d'Oro 2
1,3 Km
La Madia a Strada
1,4 Km
Pizzeria Il Forno d'Oro
1,5 Km
Osteria Scianna
1,5 Km
Mostra tutto

Caratteristiche

Rif.:
61189748
Piano:
Terra di 2
Totale piani:
2
Condizionamento:
Assente
Ascensore:
No
Riscaldamento:
Autonomo
Mostra tutto
Prezzo Prezzo
€ 700.000
Rata mutuo Rata mutuo
€ 3.325 / mese
Spese annue Spese annue
€ 0
Proponi il tuo prezzoProponi il tuo prezzo

Classe Energetica

Questo immobile è esente da classe energetica
Anno di costruzione:
1967
Riscaldamento:
Autonomo
Tipo impianto:
A radiatori
Tipo alimentazione:
Metano

Ti interessa visionare l'immobile?

Fissa un appuntamento  Fissa un appuntamento

Richiedi informazioni

Clicca su Leggi per aprire l'informativa
* Questi campi sono obbligatori

Calcola il tuo mutuo

Semplice e senza impegno
Anticipo

( % )
Mutuo

( % )

pochi semplici passi

inserisci i tuoi dati
Questionario completato
Grazie per aver richiesto un appuntamento senza impegno con un nostro Consulente del Credito e Assicurativo.

Hai inserito correttamente tutti i dati necessari e a breve riceverai una e-mail con un link da convalidare per inviare i tuoi dati.
Affiliato
Impresa Pisa Srl
Via Scornigiana, 56 56121 Pisa (PI)

Il nostro staff


  • Adelin Bursuc
    Collaboratore

  • Greta Lami
    Collaboratrice

  • Davide Rullo
    Collaboratore

  • Carmen Scullari
    Coordinatrice

  • Luca Schifano
    Affiliato
Via Scornigiana, 56 56121 Pisa (PI)
Zona: Pisa-Cascina
Mostra su mappa
Orari: I nostri orari di apertura sono: Lunedì: 09:00 - 13:00 e 14:00 - 19:00 Martedì: 09:00 - 13:00 e 14:00 - 19:00 Mercoledì: 09:00 - 13:00 e 14:00 - 19:00 Giovedì: 09:00 - 13:00 e 14:00 - 19:00 Venerdì: 09:00 - 13:00 e 14:00 - 19:00 Sabato: 09:00 - 13:00 Domenica: Chiuso
Affiliato
Impresa Pisa Srl
Via Scornigiana, 56 56121 Pisa (PI)

2026 Tecnocasa Franchising S.p.A. - P. IVA 08365160152 - Via Monte Bianco 60/A 20089 Rozzano (MI). Ogni agenzia ha un proprio titolare ed è autonoma. Privacy policy | Policy utilizzo | Cookie policy