Ufficio in affitto

Pisa, Via Luigi Russo - Cisanello
€ 1.250 / mese
Prezzo aggiornato
4 locali 4 locali
82 Mq 82 Mq
2 bagni 2 bagni

Ufficio in affitto

Pisa, Via Luigi Russo - Cisanello

Descrizione annuncio

PISA – ZONA CISANELLO

A/10 - UFFICIO

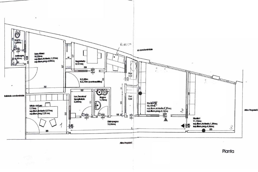
Proponiamo in affitto un ufficio di 82 mq situato al primo piano.

DESCRIZIONE E PARTICOLARITA’

L’ufficio proposto in affitto gode di una superfice calpestabile di 82 mq, con un’altezza di 2,70 m dotato di controsoffitto che, se rimosso, consente di ottenere un’altezza di 2,88 m.

L’ingresso conduce a un primo ambiente di 12 mq, attualmente adibito a sala d’attesa, con spazio da utilizzare come accettazione.

Lungo il corridoio troviamo un comodo ripostiglio e un piccolo locale di 3 mq.

Proseguendo troviamo, a sinistra, due locali rispettivamente di 13 e 12 mq e uno più piccolo di 3 mq; a destra un ufficio di 9 mq e un locale tecnico di 3 mq.

Completano la soluzione i due bagni, di cui uno con antibagno, e un locale tecnico.

Possibilità di parcheggio.

Le spese condominiali ammontano a 300€ mensili e comprendono: acqua, riscaldamento, condizionamento, amministratore e manutenzione giardino.

UBICAZIONE E CONTESTO

L’ufficio proposto è ubicato in zona Cisanello all’interno del centro forum, dove all’interno si trovano vari servizi commerciali e professionali tra cui: la MediaWorld, l’agenzia delle entrate, notai, studi medici e ristoranti.

Fissa un appuntamento per vedere questo immobile e chiama lo 050.3144967 oppure manda un’e-mail a pice4

Mostra tutto

Nelle vicinanze

Trasporto pubblico Trasporto pubblico
stazione di Pisa Centrale
stazione di Pisa Centrale
1,8 Km
San Giusto - Aurelia
San Giusto - Aurelia
2,6 Km
Matteucci 2
Matteucci 2
110 m
Matteucci 5
Matteucci 5
160 m
Stazione Centrale
Stazione Centrale
1,9 Km
Ricariche auto elettriche Ricariche auto elettriche
Pissa Centro Forum | EnelX
80 m
Pisa Park Nenni | EnelX
210 m
Pisa Coop Valgimigli | EnelX
490 m
Eneldrive Ponte della Vittoria
920 m
Eneldrive A.C.I. - Automobile Club Pisa
980 m
Scuole Scuole
Scuola primaria "Guglielmo Oberdan"
410 m
Scuole Elementari "De Sanctis"
480 m
Complesso scolastico Marchesi
490 m
Liceo Scientifico "Filippo Buonarroti" e I.T.G.A. "E. Santoni"
510 m
Facoltà di Agraria
640 m
Farmacia Farmacia
Farmacia D'Igea
190 m
Farmacia Minucci
810 m
Farmacia Raimo
870 m
Farmacia
920 m
Parafarmacia Pharmaval
1,0 Km
Ospedali Ospedali
Pubblica Assistenza S.R. Pisa
680 m
USL 5
730 m
Pronto Soccorso
1,8 Km
ospedale Cisanello
1,9 Km
Polo Ospedaliero "Santa Chiara"
2,5 Km
Supermercati Supermercati
Coop Cisanello
370 m
Arcobalò
690 m
Esselunga
820 m
Penny
960 m
Tuodì
1,1 Km
Negozi Negozi
Carrefour Express
560 m
Negozi
790 m
BIO al SACCO
860 m
Panificio Fratelli Borelli
900 m
Panetteria I Cavalieri
1,1 Km
Bar Bar
Caffetteria Kandinsky
20 m
La Petite
250 m
Bar
620 m
Il borghetto
700 m
Bar Pasticceria Lilli
750 m
Ristoranti Ristoranti
Asuka
20 m
Old Wild West
50 m
La Greppia Mangiatoia
220 m
Made in Sud 2.0
240 m
Il mio Capriccio
250 m
Mostra tutto

Caratteristiche

Rif.:
61177381
Piano:
1 di 1 con ascensore (Piano basso)
Condizionamento:
Autonomo
Ascensore:
Riscaldamento:
Autonomo
Libero:
Mostra tutto
Prezzo Prezzo
€ 1.250 / mese
Spese annue Spese annue
€ 3.600

Altre caratteristiche

Classe Energetica

Questo immobile è esente da classe energetica
Anno di costruzione:
2002
Riscaldamento:
Autonomo
Tipo impianto:
Ad aria
Tipo alimentazione:
Altro

Prezzo ridotto di €1 (17%%)

Ti interessa visionare l'immobile?

Fissa un appuntamento  Fissa un appuntamento

Richiedi informazioni

Clicca su Leggi per aprire l'informativa
* Questi campi sono obbligatori
Affiliato
Impresa Pisa Srl
Via Scornigiana, 56 56121 Pisa (PI)

Il nostro staff


  • Adelin Bursuc
    Collaboratore

  • Greta Lami
    Collaboratrice

  • Davide Rullo
    Collaboratore

  • Carmen Scullari
    Coordinatrice

  • Luca Schifano
    Affiliato
Via Scornigiana, 56 56121 Pisa (PI)
Zona: Pisa-Cascina
Mostra su mappa
Orari: I nostri orari di apertura sono: Lunedì: 09:00 - 13:00 e 14:00 - 19:00 Martedì: 09:00 - 13:00 e 14:00 - 19:00 Mercoledì: 09:00 - 13:00 e 14:00 - 19:00 Giovedì: 09:00 - 13:00 e 14:00 - 19:00 Venerdì: 09:00 - 13:00 e 14:00 - 19:00 Sabato: 09:00 - 13:00 Domenica: Chiuso
Affiliato
Impresa Pisa Srl
Via Scornigiana, 56 56121 Pisa (PI)

2026 Tecnocasa Franchising S.p.A. - P. IVA 08365160152 - Via Monte Bianco 60/A 20089 Rozzano (MI). Ogni agenzia ha un proprio titolare ed è autonoma. Privacy policy | Policy utilizzo | Cookie policy