Negozio in vendita

Pisa, Piazza francesco domenico guerrazzi
€ 89.000
2 locali 2 locali
55 Mq 55 Mq
1 bagno 1 bagno

Negozio in vendita

Pisa, Piazza francesco domenico guerrazzi

Descrizione annuncio

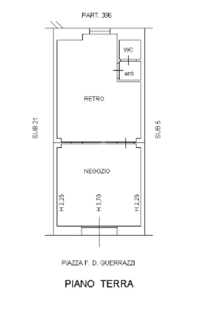
PISA – PIAZZA GUERRAZZI

C/1 - NEGOZIO

Proponiamo in vendita un negozio di circa 55 mq situato al piano terra.

DESCRIZIONE E PARTICOLARITA’

Il negozio proposto in vendita gode di una superfice calpestabile di circa 55 mq ed è dotato di vetrina che affaccia su Piazza Guerrazzi.

Attraverso l’ingresso si accede al primo locale di circa 25 mq, attualmente adibito a esposizione e vendita prodotti.

Proseguendo si accede al secondo locale di circa 30 mq, in cui è presente il bagno e l’antibagno.

L'immobile è attualmente locato con una rendita annua di € 9.960,0 garantendo un ottimo ritorno sull'investimento pari a circa il 10%.

UBICAZIONE E CONTESTO

L’ufficio proposto è ubicato vicino alla stazione centrale di Pisa ed ai principali servizi, a due passi dalle più importanti attrazioni della città.

Fissa un appuntamento per vedere questo immobile e chiama lo 050.3144967 oppure manda un’e-mail a pice4

Mostra tutto

Nelle vicinanze

Trasporto pubblico Trasporto pubblico
stazione di Pisa Centrale
stazione di Pisa Centrale
630 m
San Giusto - Aurelia
San Giusto - Aurelia
1,5 Km
Da Sangallo 2
Da Sangallo 2
100 m
da Sangallo 1
da Sangallo 1
110 m
Stazione Centrale
Stazione Centrale
760 m
Ricariche auto elettriche Ricariche auto elettriche
Eneldrive Ponte della Vittoria
260 m
Eneldrive Queirolo
480 m
Ponte della Fortezza | EnelX
570 m
Eneldrive Piazza Giusti
610 m
Pisa Crispi | EnelX
760 m
Scuole Scuole
Scuola Primaria “C. Battisti”
260 m
Liceo Classico "Galileo Galilei"
290 m
Scuole
310 m
Istituto Tecnico Commerciale "Antonio Pacinotti"
350 m
Facoltà di Economia
390 m
Farmacia Farmacia
Farmacia San Marco
60 m
Farmacia
550 m
Guglielmino
580 m
Pharmastazione
650 m
Farmacia del Carmine
660 m
Ospedali Ospedali
USL 5
1,3 Km
Polo Ospedaliero "Santa Chiara"
1,6 Km
Pubblica Assistenza S.R. Pisa
1,9 Km
Misericordia di Pisa
2,7 Km
Pronto Soccorso
3,0 Km
Supermercati Supermercati
Padma MiniMarket (Grocery)
490 m
Pam
520 m
EuroSpin
520 m
Conad City
610 m
inCoop
920 m
Negozi Negozi
Negozi
140 m
Carrefour Express
170 m
Il Fornaio
300 m
Minimarket il Portone
310 m
Panetteria Cioni
480 m
Bar Bar
Salvini
280 m
Bar
390 m
Bar "La caffetteria"
400 m
Leningrad Café
430 m
Circolo ARCI Rinascita
490 m
Ristoranti Ristoranti
Stazione di ristoro Leopolda
30 m
L'Alba Rossa
60 m
Kobe
70 m
Cereria Alle Porte
120 m
Pony Pizza
250 m
Mostra tutto

Caratteristiche

Rif.:
61180341
Piano:
Terra di 2
Totale piani:
2
Condizionamento:
Autonomo
Ascensore:
No
Riscaldamento:
Autonomo
Mostra tutto
Prezzo Prezzo
€ 89.000
Rata mutuo Rata mutuo
€ 420 / mese
Spese annue Spese annue
€ 0
Proponi il tuo prezzoProponi il tuo prezzo

Classe Energetica

Questo immobile è esente da classe energetica
Anno di costruzione:
1969
Riscaldamento:
Autonomo
Tipo impianto:
Ad aria
Tipo alimentazione:
Altro

Ti interessa visionare l'immobile?

Fissa un appuntamento  Fissa un appuntamento

Richiedi informazioni

Clicca su Leggi per aprire l'informativa
* Questi campi sono obbligatori

Calcola il tuo mutuo

Semplice e senza impegno
Anticipo

( % )
Mutuo

( % )

pochi semplici passi

inserisci i tuoi dati
Questionario completato
Grazie per aver richiesto un appuntamento senza impegno con un nostro Consulente del Credito e Assicurativo.

Hai inserito correttamente tutti i dati necessari e a breve riceverai una e-mail con un link da convalidare per inviare i tuoi dati.
Affiliato
Impresa Pisa Srl
Via Scornigiana, 56 56121 Pisa (PI)
Via Scornigiana, 56 56121 Pisa (PI)
Zona: Pisa-Cascina
Mostra su mappa
Orari: I nostri orari di apertura sono: Lunedì: 09:00 - 13:00 e 14:00 - 19:00 Martedì: 09:00 - 13:00 e 14:00 - 19:00 Mercoledì: 09:00 - 13:00 e 14:00 - 19:00 Giovedì: 09:00 - 13:00 e 14:00 - 19:00 Venerdì: 09:00 - 13:00 e 14:00 - 19:00 Sabato: 09:00 - 13:00 Domenica: Chiuso
Affiliato
Impresa Pisa Srl
Via Scornigiana, 56 56121 Pisa (PI)

2026 Tecnocasa Franchising S.p.A. - P. IVA 08365160152 - Via Monte Bianco 60/A 20089 Rozzano (MI). Ogni agenzia ha un proprio titolare ed è autonoma. Privacy policy | Policy utilizzo | Cookie policy