Magazzino in vendita

Pisa, via Ludovico Lazzaro Zamenhof
€ 79.000
1 locale 1 locale
131 Mq 131 Mq

Magazzino in vendita

Pisa, via Ludovico Lazzaro Zamenhof

Descrizione annuncio

PISA – PIAZZA DELLE GONDOLE

C/6 – GARAGE

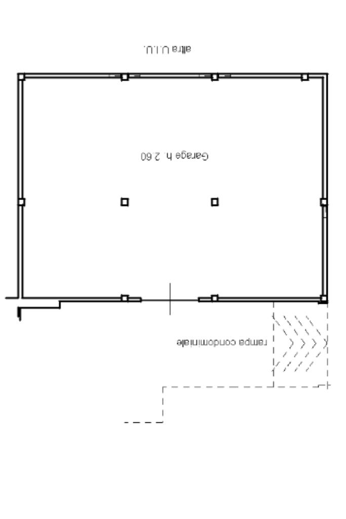
Proponiamo in vendita un garage di 131 mq situato al piano seminterrato di un condominio.

DESCRIZIONE E PARTICOLARITA’

Il garege proposto in vendita gode di una superfice calpestabile di 131 mq ed è situato al piano seminterrato di un complesso residenziale.

Attraverso il portellone, alto 2,19 m e largo 2,39 m, accendiamo all’ambiente principale di 131 mq, alto 2,61 m e del tutto open-space dotato di cinque finestre.

L’immobile è dotato di un doppio accesso veicolare, uno è largo 3,39 e alto 2,19 m e l’altro largo 3,09 e alto 2,28 m.

Inoltre, sono presenti un impianto elettrico di 220/380 kW e un impianto di illuminazione.

Possibilità di creare tre garage separati.

UBICAZIONE E CONTESTO

Il garage proposto è ubicato a Pisa in Piazza delle Gondole a pochi passi dal centro città.

Fissa un appuntamento per vedere questo immobile e chiama lo 050.3144967 oppure manda un’e-mail a pice4

Mostra tutto

Nelle vicinanze

Trasporto pubblico Trasporto pubblico
stazione di Pisa Centrale
stazione di Pisa Centrale
1,3 Km
stazione di Pisa San Rossore
stazione di Pisa San Rossore
2,0 Km
Garibaldi 3
Garibaldi 3
110 m
S. Marta 2
S. Marta 2
160 m
Stazione Centrale
Stazione Centrale
1,5 Km
Ricariche auto elettriche Ricariche auto elettriche
Questura Di Pisa | EnelX
200 m
Ponte della Fortezza | EnelX
250 m
Eneldrive Ponte della Vittoria
720 m
Pisa Park Battelli | EnelX
740 m
Santa Caterina d'Alessandria | EnelX
830 m
Scuole Scuole
Istituto Leonardo Fibonacci
290 m
Scuola Primaria D. Chiesa
330 m
Segreterie studenti
480 m
Dipartimento di Fisica 'E. Fermi'
500 m
Dipartimento di Informatica
510 m
Farmacia Farmacia
Parafarmacia Pharmaval
150 m
Farmacia Comunale n°3
480 m
BioFarma - Parafarmacia & Erboristeria
540 m
Farmacia Nuova
580 m
Farmacia Bottari
690 m
Ospedali Ospedali
USL 5
690 m
Polo Ospedaliero "Santa Chiara"
1,5 Km
Pubblica Assistenza S.R. Pisa
1,6 Km
ospedale Cisanello
2,8 Km
Pronto Soccorso
2,9 Km
Supermercati Supermercati
Conad Margherita
540 m
Pam Local
750 m
Coop Cisanello
850 m
Pam
920 m
Conad City
1,0 Km
Negozi Negozi
Panificio Fratelli Borelli
140 m
BIO al SACCO
200 m
Negozi
250 m
La piccola Ecobottega
290 m
Panificio del Tribunale
360 m
Bar Bar
Bar
300 m
Circolo ARCI Rinascita
360 m
Scalo Roncioni
420 m
Il borghetto
440 m
Borderline Club
500 m
Ristoranti Ristoranti
Pizzeria Da Lara
160 m
Gusto al 129
300 m
Ristoro pisano
310 m
Otto - Pizza al taglio
320 m
Ristorante Cinese Giapponese Ni Hao Ciao
380 m
Mostra tutto

Caratteristiche

Rif.:
61149742
Piano:
Seminterrato di 2
Totale piani:
2
Condizionamento:
Assente
Ascensore:
No
Riscaldamento:
Assente
Mostra tutto
Prezzo Prezzo
€ 79.000
Rata mutuo Rata mutuo
€ 375 / mese
Spese annue Spese annue
€ 100
Proponi il tuo prezzoProponi il tuo prezzo

Classe Energetica

Questo immobile è esente da classe energetica
Riscaldamento:
Assente

Ti interessa visionare l'immobile?

Fissa un appuntamento  Fissa un appuntamento

Richiedi informazioni

Clicca su Leggi per aprire l'informativa
* Questi campi sono obbligatori

Calcola il tuo mutuo

Semplice e senza impegno
Anticipo

( % )
Mutuo

( % )

pochi semplici passi

inserisci i tuoi dati
Questionario completato
Grazie per aver richiesto un appuntamento senza impegno con un nostro Consulente del Credito e Assicurativo.

Hai inserito correttamente tutti i dati necessari e a breve riceverai una e-mail con un link da convalidare per inviare i tuoi dati.
Affiliato
Impresa Pisa Srl
Via Scornigiana, 56 56121 Pisa (PI)

Il nostro staff


  • Adelin Bursuc
    Collaboratore

  • Greta Lami
    Collaboratrice

  • Davide Rullo
    Collaboratore

  • Carmen Scullari
    Coordinatrice

  • Luca Schifano
    Affiliato
Via Scornigiana, 56 56121 Pisa (PI)
Zona: Pisa-Cascina
Mostra su mappa
Orari: I nostri orari di apertura sono: Lunedì: 09:00 - 13:00 e 14:00 - 19:00 Martedì: 09:00 - 13:00 e 14:00 - 19:00 Mercoledì: 09:00 - 13:00 e 14:00 - 19:00 Giovedì: 09:00 - 13:00 e 14:00 - 19:00 Venerdì: 09:00 - 13:00 e 14:00 - 19:00 Sabato: 09:00 - 13:00 Domenica: Chiuso
Affiliato
Impresa Pisa Srl
Via Scornigiana, 56 56121 Pisa (PI)

2026 Tecnocasa Franchising S.p.A. - P. IVA 08365160152 - Via Monte Bianco 60/A 20089 Rozzano (MI). Ogni agenzia ha un proprio titolare ed è autonoma. Privacy policy | Policy utilizzo | Cookie policy