Capannone in affitto

Pisa, Via Archimede Bellatalla - Ospedaletto
6 locali 6 locali
1981 Mq 1981 Mq
4 bagni 4 bagni

Capannone in affitto

Pisa, Via Archimede Bellatalla - Ospedaletto

Descrizione annuncio

PISA – OSPEDALETTO

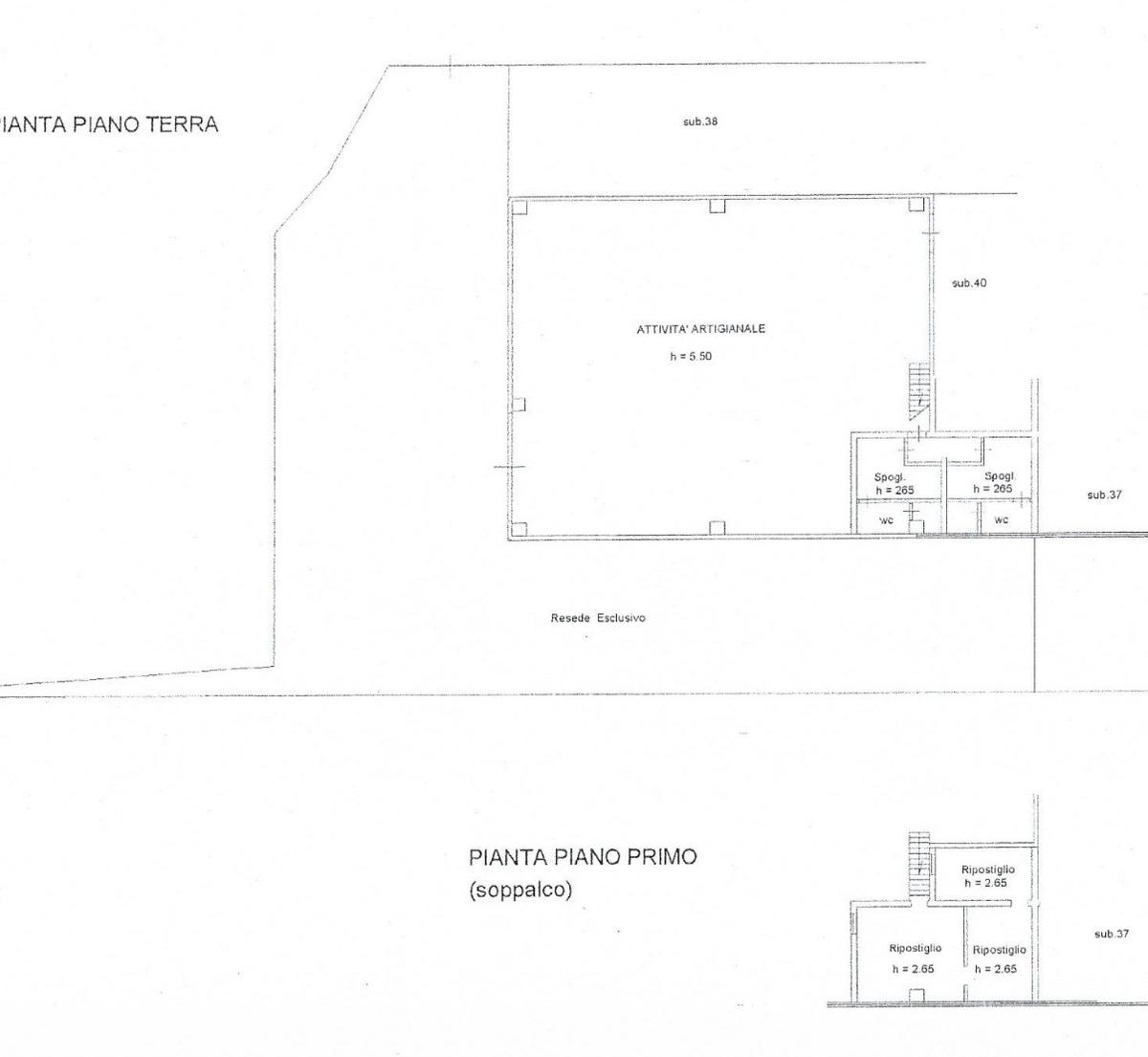
Proponiamo in locazione un capannone industriale di 1981 mq libero su quattro lati con piazzale di 1600 mq dotato di accesso per bilici.

DESCRIZIONE E PARTICOLARITA’

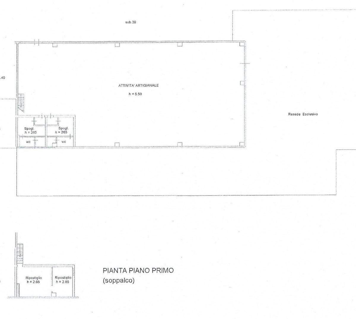
Il capannone proposto si sviluppa su due livelli.

Il piano terra è diviso in due ambienti separati tra loro anche, il più grande di 577 mq ed alto 5,50 m è dotato di portellone industriale alto 5 m e largo 4 m per permettere l’ingresso a bilici e mezzi pesanti.

Sempre al piano terra è presente un ufficio soppalcato insieme ai servizi igienici.

Dal vano scale esterno, si accede alla parte adibita ad uso uffici/deposito al primo piano, di ulteriori 577 mq ed alta 3 m.

L’altra metà del capannone, sempre al piano terra è di 408 mq ed alta 6 m, anche quest’altra metà è dotata di servizi igienici ed ufficio soppalcato. Anche quest’altra metà è dotata di portellone industriale alto 5 m e largo 4 m per permettere l’ingresso al capannone anche a bilici e mezzi pesanti.

In quest’ultima porzione l’accesso al vano scale avviene dall’interno, dal quale si raggiunge la seconda parte di uffici al primo piano di 320 mq con un’altezza di 3,57 m anch’esso dotato di servizi.

L’immobile è dotato di predisposizione per montacarichi interno, accessibile con muletti; L’impianto elettrico è trifase 380 V.

UBICAZIONE E CONTESTO

Il capannone proposto è ubicato in zona industriale ed a poche centinaia di metri dall’ingresso in Fi-Pi-Li e di facile accesso all’Autostrada.

Fissa un appuntamento per vedere questo immobile e chiama lo 050-3144967 oppure manda un’e-mail a pice4

Mostra tutto

Nelle vicinanze

Trasporto pubblico Trasporto pubblico
Ospedaletto Deposito 1
Ospedaletto Deposito 1
540 m
Ragghianti
Ragghianti
560 m
Scuole Scuole
Scuole
2,4 Km
Supermercati Supermercati
COOP Ospedaletto
2,4 Km
Metro
2,7 Km
Coop.fi
3,0 Km
Negozi Negozi
Conbipel
2,5 Km
Alimentari Frediani
2,5 Km
Officina Del Gusto
2,6 Km
H&M
3,0 Km
Bar Bar
Bar 1926
800 m
Bar
1,0 Km
Casa del Popolo - Ospedaletto
2,4 Km
Bar Montanelli
2,4 Km
Caffè Mirò
2,5 Km
Ristoranti Ristoranti
Main Kitchen
1,2 Km
La Strambata
1,3 Km
Iguana è di Più
1,4 Km
Malvaldo
1,5 Km
La Baita
1,8 Km
Mostra tutto

Caratteristiche

Rif.:
61117339
Piano:
Su più livelli
Posti auto:
10
Condizionamento:
Autonomo
Ascensore:
No
Riscaldamento:
Assente
Mostra tutto
Prezzo Prezzo
€ 9.000 / mese
Anche in vendita a

Classe Energetica

Questo immobile è esente da classe energetica
Anno di costruzione:
2007
Riscaldamento:
Assente

Ti interessa visionare l'immobile?

Fissa un appuntamento  Fissa un appuntamento

Richiedi informazioni

Clicca su Leggi per aprire l'informativa
* Questi campi sono obbligatori
Affiliato
Impresa Pisa Srl
Via Scornigiana, 56 56121 Pisa (PI)

Il nostro staff


  • Adelin Bursuc
    Collaboratore

  • Greta Lami
    Collaboratrice

  • Davide Rullo
    Collaboratore

  • Carmen Scullari
    Coordinatrice

  • Luca Schifano
    Affiliato
Via Scornigiana, 56 56121 Pisa (PI)
Zona: Pisa-Cascina
Mostra su mappa
Orari: I nostri orari di apertura sono: Lunedì: 09:00 - 13:00 e 14:00 - 19:00 Martedì: 09:00 - 13:00 e 14:00 - 19:00 Mercoledì: 09:00 - 13:00 e 14:00 - 19:00 Giovedì: 09:00 - 13:00 e 14:00 - 19:00 Venerdì: 09:00 - 13:00 e 14:00 - 19:00 Sabato: 09:00 - 13:00 Domenica: Chiuso
Affiliato
Impresa Pisa Srl
Via Scornigiana, 56 56121 Pisa (PI)

2026 Tecnocasa Franchising S.p.A. - P. IVA 08365160152 - Via Monte Bianco 60/A 20089 Rozzano (MI). Ogni agenzia ha un proprio titolare ed è autonoma. Privacy policy | Policy utilizzo | Cookie policy