Capannone in vendita

Calcinaia, Via ToscoRomagnola EST - Fornacette
€ 498.000
6 locali 6 locali
1900 Mq 1900 Mq
2 bagni 2 bagni

Capannone in vendita

Calcinaia, Via ToscoRomagnola EST - Fornacette

Descrizione annuncio

FORNACETTE

D/8 – CAPANNONE COMMERCIALE

Proponiamo in vendita un capannone commerciale di 1.850 mq libero su quattro lati, situato su una strada ad alta visibilità e ad alto traffico veicolare.

DESCRIZIONE E PARTICOLARITA’

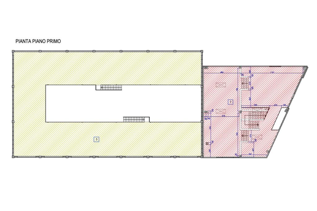
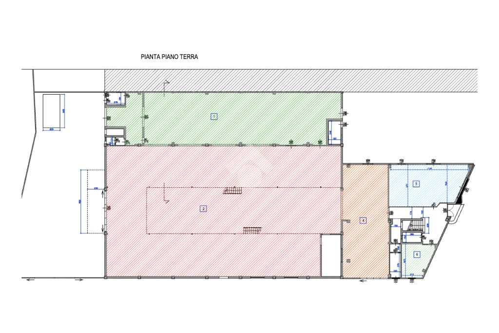
L’ingresso principale conduce alla zona dedicata all’esposizione e alla vendita, con una piccola area adibita ad uffici, per una superficie complessiva di circa 210 mq e un’altezza di 3,10 m. Tramite le scale si accede al primo piano, dove si trova una seconda zona espositiva di circa 250 mq.

Proseguendo, al piano terra, troviamo un magazzino di circa 731 mq, con altezza massima al centro di 7,40 m, dotato di soppalco che offre un’ulteriore superficie di 480 mq alto 3,90 m, ideale per lo stoccaggio delle merci e di un portellone alto 4,40 m e largo 8,00 m, che facilita l’accesso ai bilici.

Sulla destra si accede al secondo magazzino di circa 280 mq, anch’esso completo di un portellone alto 2,90 m e largo 2,75 m.

Il capannone è dotato di corrente trifase a 380 V, pompa antincendio con cisterna e piazzale sul retro di circa 312 mq.

Completano la proprietà tre ripostigli, doppi servizi con antibagno e due uscite di emergenza.

Ideale anche per investimento.

UBICAZIONE E CONTESTO

Il capannone proposto è ubicato sulla Tosco Romagnola, all’uscita di Cascina, nelle immediate vicinanze dell’ingresso alla Strada di Grande Comunicazione FI-PI-LI, che collega comodamente i comuni di Firenze, Pisa e Livorno.

Fissa un appuntamento per vedere questo immobile e chiama lo 050.3144967 oppure manda un’e-mail a pice4

Mostra tutto

Nelle vicinanze

Trasporto pubblico Trasporto pubblico
stazione di Cascina
stazione di Cascina
1,7 Km
Cascina
Cascina
1,7 Km
Trasporto pubblico
490 m
Fornacette
Fornacette
1,2 Km
Ricariche auto elettriche Ricariche auto elettriche
Eneldrive Deposito Comunale
200 m
Eneldrive Centro Sportivo Pardossi
810 m
Eneldrive Parcheggio di Via Artigiani
1,2 Km
Eneldrive Municipio di Cascina
1,3 Km
Eneldrive Centro Storico
1,5 Km
Scuole Scuole
Scuola Media Salvatore Quasimodo
950 m
Scuole
1,2 Km
Giovanni Pascoli
1,4 Km
Scuola Il Girotondo
1,5 Km
Ex Scuola Elementare di San Giovanni alla Vena
1,6 Km
Farmacia Farmacia
comunale
1,3 Km
Farmacia Coletti
1,4 Km
Piccioli
1,5 Km
Farmacia Dottor Fontana
1,7 Km
Cambini Snc
2,3 Km
Ospedali Ospedali
Guardia Medica
1,5 Km
Supermercati Supermercati
EuroSpin
40 m
Dpiù
410 m
Pam
460 m
COOP
1,1 Km
Conad
1,3 Km
Negozi Negozi
One Fashion
410 m
Negozi
650 m
A tutta bontà
1,7 Km
W Le Donne
1,8 Km
Bar Bar
Bar il Laghetto
780 m
Il Duka
1,2 Km
Bar
1,3 Km
Gens
2,2 Km
Ristoranti Ristoranti
Ristoranti
770 m
Bar Pizzeria La Tavernetta
1,3 Km
Win Bar dei Grilli
1,4 Km
Osteria Pasta e Vino
1,4 Km
Pizzeria Papà Nanuccio
1,4 Km
Mostra tutto

Caratteristiche

Rif.:
61183350
Piano:
Basso di 1
Totale piani:
1
Condizionamento:
Autonomo
Ascensore:
No
Riscaldamento:
Autonomo
Mostra tutto
Prezzo Prezzo
€ 498.000
Rata mutuo Rata mutuo
€ 2.366 / mese
Spese annue Spese annue
€ 0
Proponi il tuo prezzoProponi il tuo prezzo

Classe Energetica

Questo immobile è esente da classe energetica
Anno di costruzione:
1980
Riscaldamento:
Autonomo
Tipo impianto:
Ad aria
Tipo alimentazione:
Altro

Ti interessa visionare l'immobile?

Fissa un appuntamento  Fissa un appuntamento

Richiedi informazioni

Clicca su Leggi per aprire l'informativa
* Questi campi sono obbligatori

Calcola il tuo mutuo

Semplice e senza impegno
Anticipo

( % )
Mutuo

( % )

pochi semplici passi

inserisci i tuoi dati
Questionario completato
Grazie per aver richiesto un appuntamento senza impegno con un nostro Consulente del Credito e Assicurativo.

Hai inserito correttamente tutti i dati necessari e a breve riceverai una e-mail con un link da convalidare per inviare i tuoi dati.
Affiliato
Impresa Pisa Srl
Via Scornigiana, 56 56121 Pisa (PI)

Il nostro staff


  • Adelin Bursuc
    Collaboratore

  • Greta Lami
    Collaboratrice

  • Davide Rullo
    Collaboratore

  • Carmen Scullari
    Coordinatrice

  • Luca Schifano
    Affiliato
Via Scornigiana, 56 56121 Pisa (PI)
Zona: Pisa-Cascina
Mostra su mappa
Orari: I nostri orari di apertura sono: Lunedì: 09:00 - 13:00 e 14:00 - 19:00 Martedì: 09:00 - 13:00 e 14:00 - 19:00 Mercoledì: 09:00 - 13:00 e 14:00 - 19:00 Giovedì: 09:00 - 13:00 e 14:00 - 19:00 Venerdì: 09:00 - 13:00 e 14:00 - 19:00 Sabato: 09:00 - 13:00 Domenica: Chiuso
Affiliato
Impresa Pisa Srl
Via Scornigiana, 56 56121 Pisa (PI)

2026 Tecnocasa Franchising S.p.A. - P. IVA 08365160152 - Via Monte Bianco 60/A 20089 Rozzano (MI). Ogni agenzia ha un proprio titolare ed è autonoma. Privacy policy | Policy utilizzo | Cookie policy